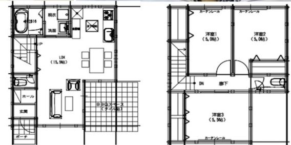
1 5 | 外観 賃貸ホテル・旅館 新築!沖縄屈指のリゾートエリア!恩納村の戸建旅館業! 12/19登録 NEW 賃料 管理費 20万円 0円 敷金 礼金 2ヶ月 3ヶ月 所在地 沖縄県国頭郡恩納村字名嘉真 交通 儀保駅 徒歩664分 間取り面積 3LDK 110㎡