50平米越え!人気の総武線沿いでアクセス良好!高収益物件です!
- 賃料 管理費
- 18万円 (税別) 0円
- 敷金 礼金
- 1ヶ月 4ヶ月
- 所在地
- 東京都江戸川区平井6丁目
- 交通
- JR総武本線平井(東京都)駅 徒歩5分
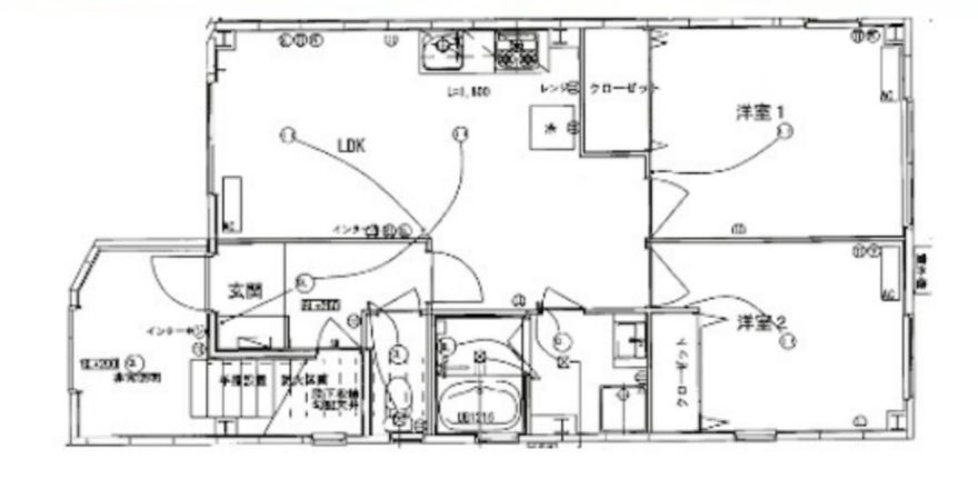
- 間取り 面積
- 2LDK 53㎡
-
民泊物件.com限定
駅近
デザイナーズ
観光名所に近い
初期費用が安い
バス・トイレ別
システムキッチン
冷暖房
洗濯機置場
オートロック
フローリング
角部屋
温水洗浄便座
洗面所独立
防犯カメラ
全居室収納
クローゼット
シューズボックス
最上階
物件の説明
50平米越え!人気の総武線沿いでアクセス良好!高収益物件です!
弊社でのみご紹介可能なおすすめ物件です。
運用・お部屋の作り込みができる代行会社さん、
民泊・旅館業の申請ができる行政書士さんも一緒にご紹介可能です。
完全に申し込み順の先着順になりますので、是非早急にご検討ください!
インバウンドはついに2024年、3,686万人という日本史上最高を記録し、
民泊事業に大変な追い風が吹いております。
民泊を始めるにあたって、
消防設備の設置・行政への手続き・お部屋の作り込み・写真撮影・リスティング作成などやることが山積みですが、
それらも専門家である弊社がサポートさせていただきます。
民泊運用・民泊投資・レンタルスペース投資に関するセミナーを行なっておりますので、
是非お越しいただけたらと思います。
ここ最近、民泊事業・民泊投資への注目度が非常に高くなっており、物件の申込もすぐに入ってきます。
ありがたいことに、申し込みも2番手・3番手までいただくことが多いです。
完全に先着順となります。
予めご了承ください。
https://ta-japan.com/seminar
高い利回りで、民泊運用・民泊投資・レンタルスペースでしっかりと収益を出していく方法をお伝えします。
お気軽にお問い合わせください。
- 物件名
- -
- 部屋番号 向き
- -/
- 種別 構造
- マンション/ 木造
- 所在階 総戸数
- 1階/ 2階建
- 契約形態 期間
- 普通賃貸借契約/ 2年
- 現況 入居
-
賃貸中/
相談
- 保証会社
-
-/
-
- 保険
- 加入義務有り (火災保険)
- 保険料
- -/ -
- 管理規約 組合
- / なし
- 管理人 形態
- -/ -
- 保証金
- なし
- 更新料
- なし
- 敷引金
- なし
- 償却金
- なし
- 造作譲渡金
- -
- 仲介手数料
- 1.1ヶ月
- 鍵交換代
- -
- 室内清掃費用
- -
- 物件番号
- 135841
- 掲載日 期限
- 2025年12月16日/ 2025年12月30日
- 設備
- -
想定収入
ロケーション
- 東京都江戸川区平井6丁目
- JR総武本線平井(東京都)駅 徒歩5分
- JR総武本線新小岩駅 徒歩33分
- 東武亀戸線東あずま駅 徒歩27分
取り扱い会社
- 店舗名
- 株式会社スリーアローズ
- 問い合わせ先
- 03-6453-6656
- 免許番号
- 東京都知事(2)第99320号
- 営業時間 定休日
- 10:00〜19:00/ 年中無休
- 住所
-
東京都港区芝4-3-11
VORT三田駅前 3階 - 仲介手数料
- 1.1ヶ月
- 取引態様
- 一般媒介
お問い合わせ
以下のお客様情報をご入力ください。
注目の物件
50平米越え!人気の総武線沿いでアクセス良好!高収益物件です!
板橋区の民泊物件!駅徒歩8分!先着2部屋!
鉄板の浅草!浅草駅徒歩8分の好立地!民泊物件出ました!
沖縄の大人気観光地【古宇利島】の旅館業!365日運用で簡単利益!
栄まですぐの好立地!賃料抑えめの2LDKで高収益・簡単利益!
賃料3万円台の簡単利益!高収益の名古屋の好立地!栄まですぐ!
電話でお問合せ
お問合せ (無料)





