新築!沖縄屈指のリゾートエリア!恩納村の戸建旅館業!
- 賃料 管理費
- 20万円 (税込) 0円
- 敷金 礼金
- 2ヶ月 3ヶ月
- 所在地
- 沖縄県国頭郡恩納村字名嘉真
- 交通
- ゆいレール儀保駅 徒歩664分
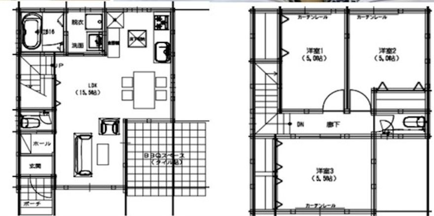
- 間取り 面積
- 3LDK 110㎡
-
民泊物件.com限定
全部屋民泊
旅館業法取得済み
家具付き
デザイナーズ
観光名所に近い
お庭付き
夜景が綺麗
海が近い
一棟まるごと
リフォーム
バス・トイレ別
システムキッチン
冷暖房
洗濯機置場
専用庭
バルコニー
フローリング
冷蔵庫
駐輪場
バイク置場
角部屋
TVドアホン
温水洗浄便座
浴室乾燥機
洗面所独立
全居室収納
クローゼット
シューズボックス
照明器具付き
物件の説明
新築・沖縄屈指のリゾートエリア・旅館業の物件です。
インバウンドが戻ってきて、大変な盛り上がりを見せている沖縄の旅館業案件です。
しかも2025年開業予定の新テーマパーク「ジャングリア」至近で、
これから間違いなく盛り上がっていくエリアです!
弊社でのみご紹介可能なおすすめ物件です。
運用・お部屋の作り込みができる代行会社さん、
民泊・旅館業の申請ができる行政書士さんも一緒にご紹介可能です。
完全に申し込み順の先着順になりますので、是非早急にご検討ください!
インバウンドついに2024年3月に日本市場最高を更新し、そこから毎月過去最高人数を叩き出しており、
民泊事業に大変な追い風が吹いております。
民泊を始めるにあたって、
消防設備の設置・行政への手続き・お部屋の作り込み・写真撮影・リスティング作成などやることが山積みですが、
それらも専門家である弊社がサポートさせていただきます。
民泊運用・民泊投資・レンタルスペース投資に関するセミナーを行なっておりますので、
是非お越しいただけたらと思います。
ここ最近、民泊事業・民泊投資への注目度が非常に高くなっており、物件の申込もすぐに入ってきます。
ありがたいことに、申し込みも2番手・3番手までいただくことが多いです。
完全に先着順となります。
予めご了承ください。
https://ta-japan.com/seminar
高い利回りで、民泊運用・民泊投資・レンタルスペースでしっかりと収益を出していく方法をお伝えします。
お気軽にお問い合わせください。
- 物件名
- -
- 部屋番号 向き
- -/
- 種別 構造
- ホテル・旅館/ 木造
- 所在階 総戸数
- -/ 7階建
- 契約形態 期間
- / 2年
- 現況 入居
-
未完成/
相談
- 保証会社
-
-/
-
- 保険
- 加入義務有り (火災保険)
- 保険料
- -/ -
- 管理規約 組合
- / なし
- 管理人 形態
- -/ -
- 保証金
- なし
- 更新料
- なし
- 敷引金
- なし
- 償却金
- なし
- 造作譲渡金
- -
- 仲介手数料
- 1.1ヶ月
- 鍵交換代
- -
- 室内清掃費用
- -
- 物件番号
- 135897
- 掲載日 期限
- 2025年12月19日/ 2026年01月02日
- 設備
- -
想定収入
ロケーション
- 沖縄県国頭郡恩納村字名嘉真
- ゆいレール儀保駅 徒歩664分
- ゆいレール首里駅 徒歩669分
- ゆいレール市立病院前(沖縄県)駅 徒歩666分
取り扱い会社
- 店舗名
- 株式会社スリーアローズ
- 問い合わせ先
- 03-6453-6656
- 免許番号
- 東京都知事(2)第99320号
- 営業時間 定休日
- 10:00〜19:00/ 年中無休
- 住所
-
東京都港区芝4-3-11
VORT三田駅前 3階 - 仲介手数料
- 1.1ヶ月
- 取引態様
- 一般媒介
お問い合わせ
以下のお客様情報をご入力ください。
注目の物件
希少な福岡の超好立地!天神の広々ワンルームで高収益民泊!
札幌の好立地!すすきのまでもすぐ!賃料抑えめで簡単利益!
人気の墨田区!最寄り駅徒歩4分!高収益おすすめ物件!
葛飾区の大型物件!1Fと2Fで2区画あるので、収益も2倍!
大田区・特区民泊で365日運用可能!戸建ての高収益物件出ました!
人気の葛飾区!賃料抑えめの簡単利益!最寄り駅徒歩2分の立地◎
電話でお問合せ
お問合せ (無料)




